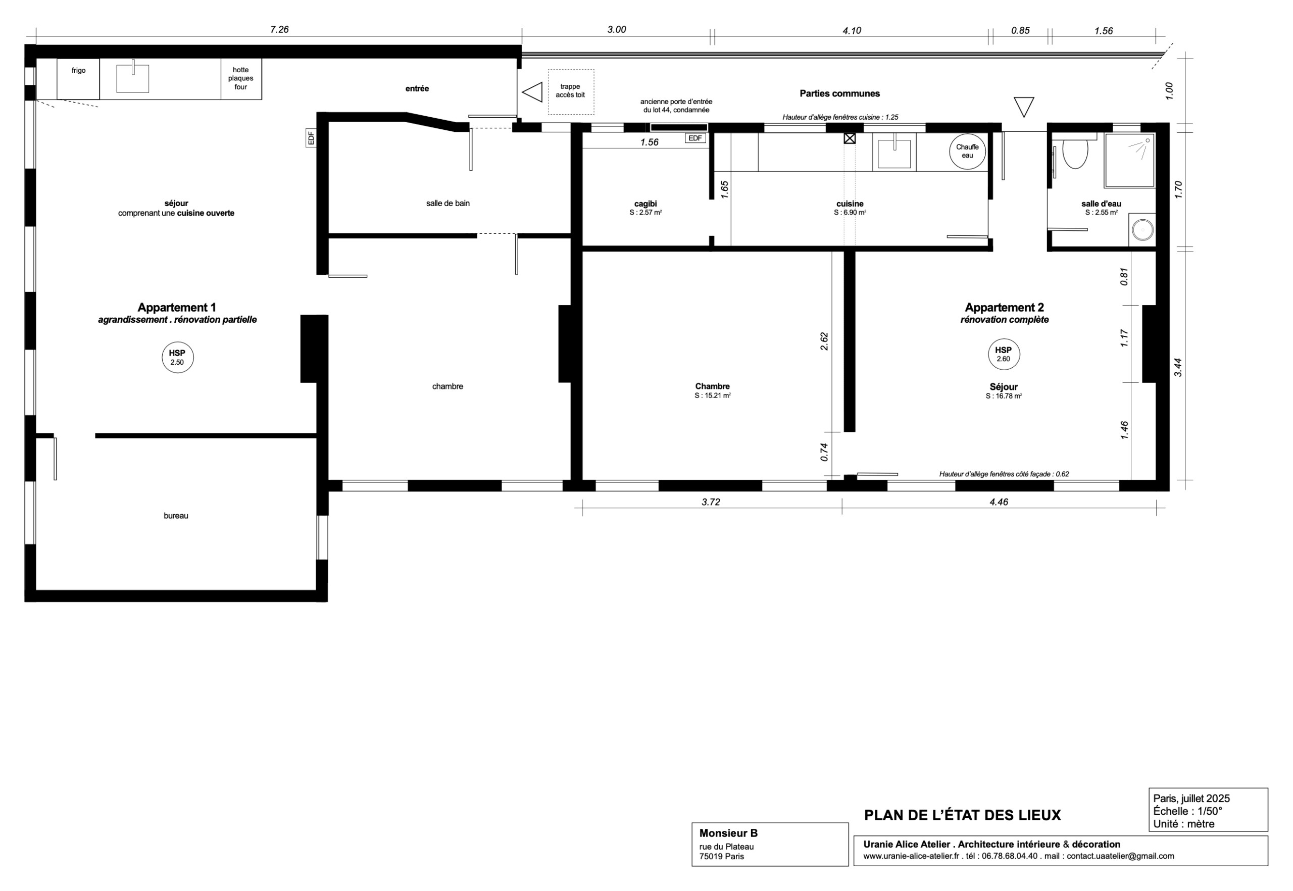
Projet de rénovation d'un appartement dans un immeuble ancien dit faubourien, situé dans le verdoyant quartier des Buttes Chaumont à Paris 19. Le logement est au deuxième et dernier étage, le lieu est traversant et donne sur des jardins romantiques. Les clients souhaitaient scinder un deux-pièces de 40 m² récemment acquis pour agrandir leur logement, tout en créant un studio indépendant.
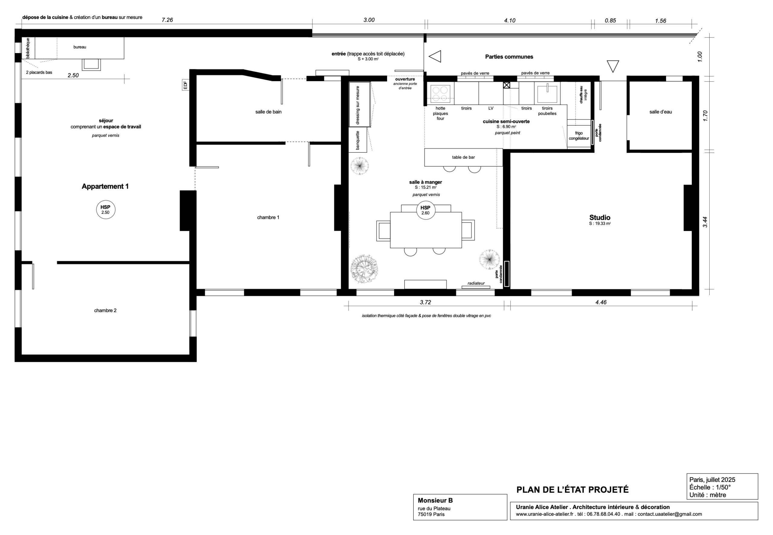
Grâce à l'achat de 3 m² de couloir appartenant initialement aux parties communes de l'immeuble, le logement a pu être facilement agrandi et relié à la nouvelle surface acquise, une ancienne porte d'entrée condamnée ayant pu être ouverte à nouveau. La nouvelle entrée permet ainsi d'accéder à une cuisine spacieuse, parfaitement équipée, et à une salle à manger conviviale, dotée de nombreux rangements sur mesure. L'ancienne cuisine de l'appartement des clients a été déposée, permettant d'aménager un grand séjour pouvant accueillir un espace de travail, libérant l'ancien espace bureau pour créer une chambre supplémentaire, en accord avec les besoins évolutifs des habitants.
J'ai souhaité restructurer l'appartement de manière à ce que la circulation soit fluide, plusieurs cloisons ont été déposées pour favoriser l'impression d'espace et la diffusion de la lumière. Au sol, le parquet d'origine a pu être conservé après un ponçage intensif et une vitrification soignée. Dans la cuisine, le parquet découvert sous le carrelage a été plus difficile à récupérer, il a donc été protégé par une peinture adaptée nuance blanc cassé poudreux et intemporel. Le parti pris pour la décoration s'est orienté vers un style scandinave : les couleurs choisies sont douces et atténuées, le bois clair est omniprésent, ainsi que la végétation. Les lignes sont épurées et élégantes, l'atmosphère intime et chaleureuse.
Superficie : agrandissement de 27 m2 (entrée, cuisine, salle à manger) - appartement d'une superficie de 55 m2 avant les travaux d'agrandissement
Durée des travaux : environ 3 mois (août à octobre 2025)
Conception du projet : juin / juillet 2025
Photographe : Arthur de Tassigny































































